0
Réf : LM3098
Coup de coeur

HYÈRES – LOCAL PROFESSIONNEL D’EXCEPTION EN CŒUR DE VILLE

Port gros (83400)
1 560 000 €

A propos de ce bien

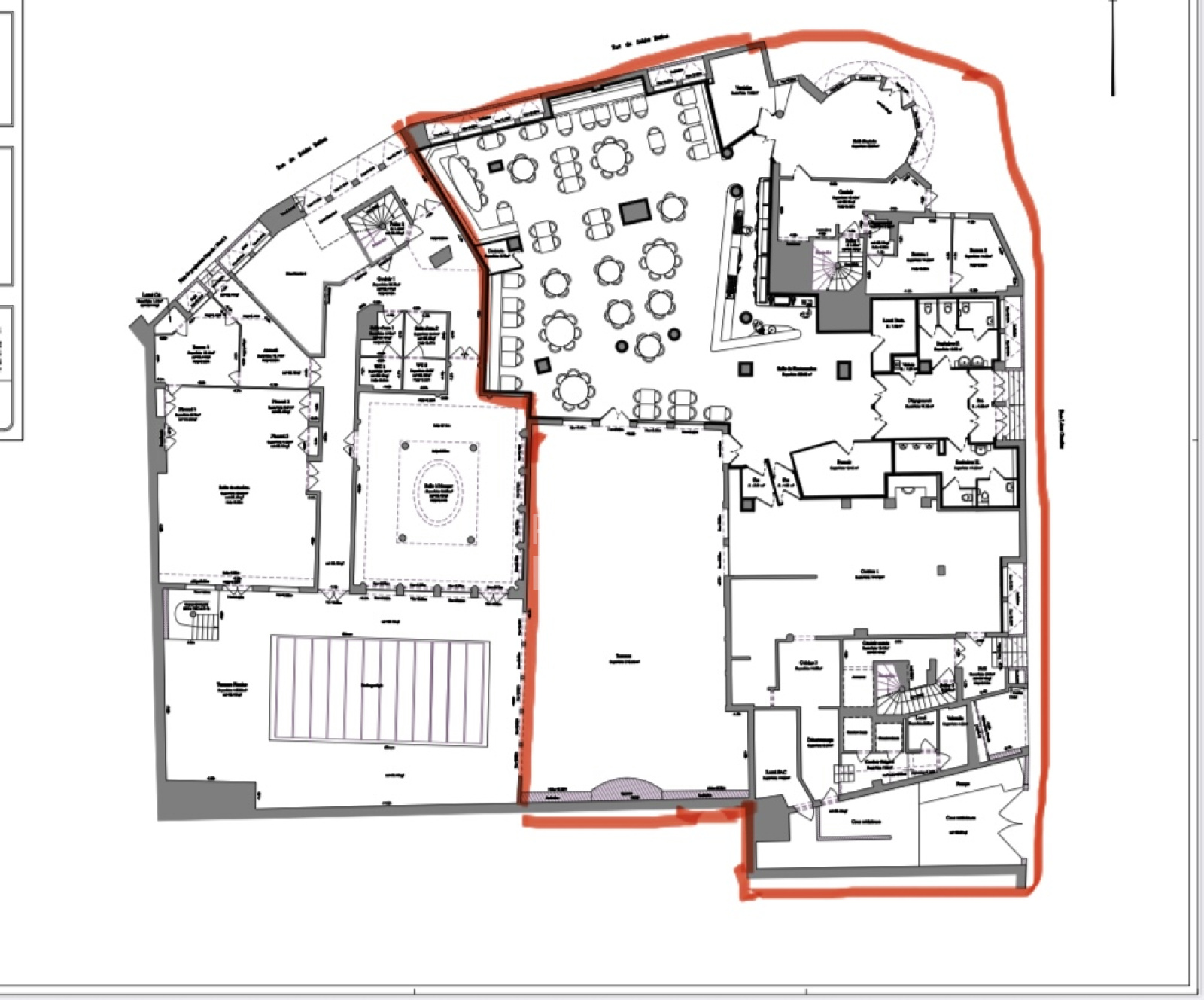
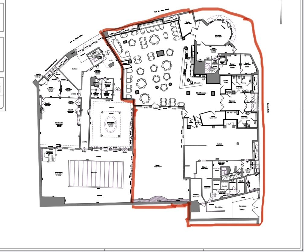
800 m² + Patio 300 m² – 15 Parkings privatifs – Emplacement n°1


Au cœur de Hyères, dans une copropriété récente de standing, découvrez un bien rare à la vente, offrant un potentiel exceptionnel pour l’installation d’un pôle médical, d’un cabinet pluridisciplinaire ou d’une étude juridique d’envergure.
Anciennement exploité en restaurant, ce local développe 800 m² de surface intérieure auxquels s’ajoute une magnifique terrasse patio privative de 300 m², véritable atout différenciant en centre-ville.


Un emplacement stratégique de premier ordre

• Situation premium en hyper centre

• Environnement dynamique et qualitatif

• Accessibilité optimale

• Visibilité forte pour une activité professionnelle


Un potentiel idéal pour professions libérales. Configuration parfaitement adaptée pour :

- Centre médical ou paramédical

- Clinique spécialisée

- Cabinet d’avocats ou étude notariale

- Siège régional ou bureaux administratifs


Les volumes existants permettent une reconfiguration simple et rationnelle. Les travaux à prévoir sont limités à :

• Aménagement des cloisons

• Revêtement de sol

• Faux plafond


La structure et les volumes offrent une base saine et qualitative pour un projet ambitieux.
Confort & accessibilité premium
Environ 15 stationnements privatifs en sous-sol, inclus dans la vente Un avantage extrêmement rare en cœur de ville.


Les points forts

• Rareté absolue sur le secteur

• Copropriété récente et qualitative

• Volumétrie exceptionnelle

• Patio privatif unique en centre-ville

• Stationnements sécurisés

• Adresse stratégique


Conditions financières
Prix net vendeur : 1 500 000 € Honoraires : 60 000 € TTC
Un bien à forte valeur patrimoniale, idéal pour structurer une activité pérenne dans un cadre prestigieux au sein de Hyères.


Contact : 06.66.46.36.96 / 06.20.76.11.46


---- Dossier complet et visite sur demande ----

Descriptif du bien

TRAD_PAMPERO_Caracteristique Valeurs
Type de transac Murs commerciaux
Code postal 83400
Surface habitable (m²) 1 055 m²
surface terrain 1 055 m²
Nombre de pièces 1
Ascenseur 1
Superficie (m²) 1055
TRAD_PAMPERO_Caracteristique Valeurs
Nombre de garage 1
Nombre de parking 2
TRAD_PAMPERO_Caracteristique Valeurs
Copropriété OUI
nombre de lots 202
TRAD_PAMPERO_Caracteristique Valeurs
Prix de vente TTC honoraires inclus 1 560 000 €
Honoraires TTC à la charge acquéreur 4 %
TRAD_PAMPERO_Caracteristique Valeurs
type d'activité - Divers
Ce bien vous est proposé par
Ce bien vous intéresse ?
Fieldset par défaut
Fieldset par défaut
Validation

* Champs obligatoires

Contacter l'agence
Validation
Les informations recueillies sur ce formulaire sont enregistrées dans un fichier informatisé par La Boite Immo agissant comme Sous-traitant du traitement pour la gestion de la clientèle/prospects de l'Agence / du Réseau qui reste Responsable du Traitement de vos Données personnelles. La base légale du traitement repose sur l'intérêt légitime de l'Agence / du Réseau. Elles sont conservées jusqu'à demande de suppression et sont destinées à l'Agence / au Réseau. Conformément à la loi « informatique et libertés », vous disposez des droits d’accès, de rectification, d’effacement, d’opposition, de limitation et de portabilité de vos données. Vous pouvez retirer votre consentement à tout moment en contactant directement l’Agence / Le Réseau. Consultez le site https://cnil.fr/fr pour plus d’informations sur vos droits. Si vous estimez, après avoir contacté l'Agence / le Réseau, que vos droits « Informatique et Libertés » ne sont pas respectés, vous pouvez adresser une réclamation à la CNIL. Nous vous informons de l’existence de la liste d'opposition au démarchage téléphonique « Bloctel », sur laquelle vous pouvez vous inscrire ici : https://www.bloctel.gouv.fr Dans le cadre de la protection des Données personnelles, nous vous invitons à ne pas inscrire de Données sensibles dans le champ de saisie libre.
Ce site est protégé par reCAPTCHA, les Politiques de Confidentialité et les Conditions d'Utilisation de Google s'appliquent.
Ces biens peuvent vous intéresser